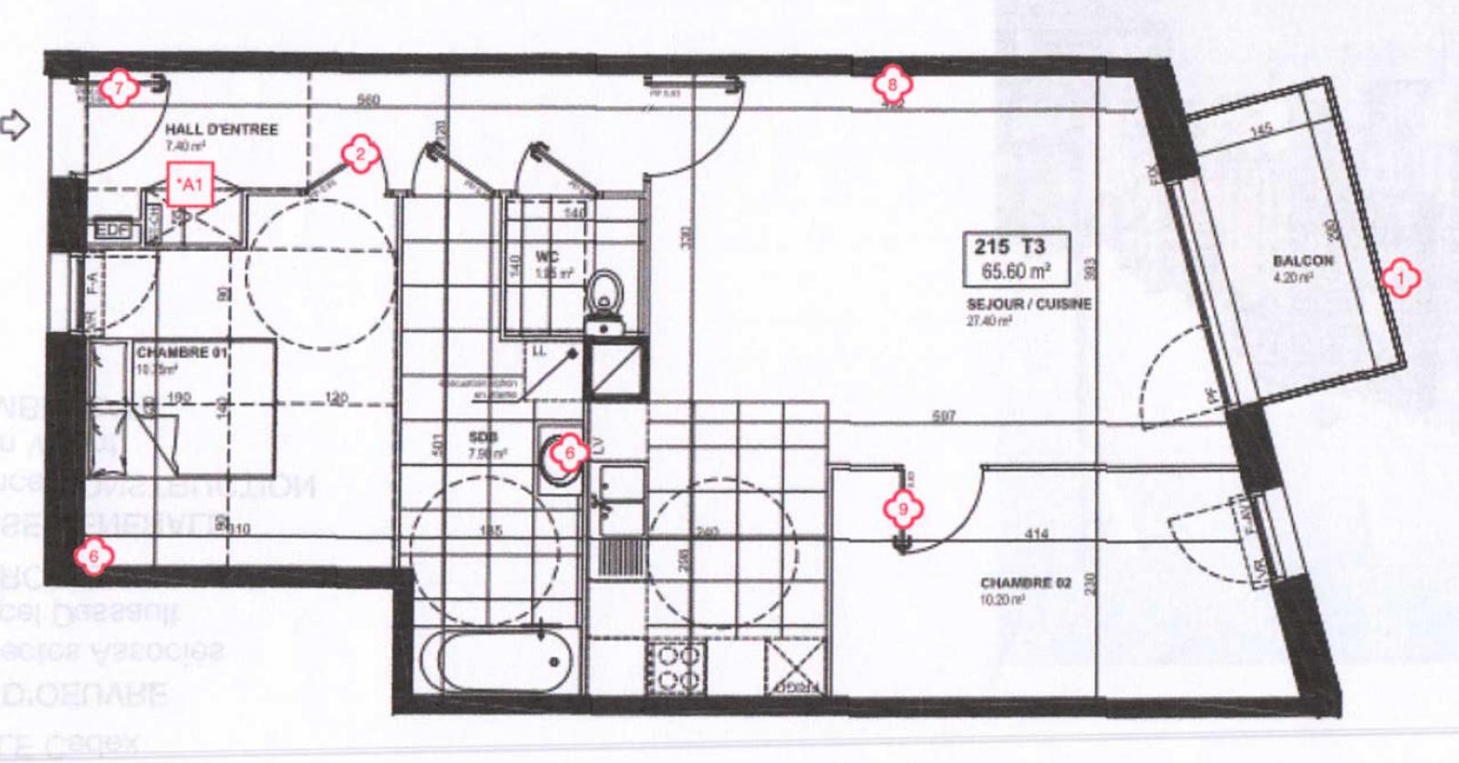
Au sein d'une résidence récente et sécurisée, appartement T3 de 65,60m2, situé au 1er étage, sur l'arrière de la résidence. Il se compose d'un hall d'entrée avec placard, un WC, une pièce de vie lumineuse donnant sur un balcon exposé plein Sud avec vue dégagée, une cuisine ouverte et équipée, 2 belles chambres, et une salle de bains avec espace buanderie. Également, un garage box en sous-sol et local à vélo. Appartement en très bon état général, avec peu de voisinage et environnement clame.
Idéalement situé, en retrait de Rue et à l'abris des nuisance, proche des commerces et des transports.
Contact : Davy FAVREAU : 06 59 09 35 49 (4.45 % honoraires TTC à la charge de l'acquéreur.)
Copropriété de 60 lots - dont 30 lots habitation.
Charges annuelles : 2720 euros.
Montant estimé des dépenses annuelles d'énergie pour un usage standard : entre 700 € et 960 € sur les années 2021, 2022 et 2023 (abonnements compris).
Les informations sur les risques auxquels ce bien est exposé sont disponibles sur le site Géorisques https://www.georisques.gouv.fr/
65.6 m² hab.
3 pièce(s)
2 chambre(s)
1 salle(s) de bain
Très bon état
Ch. Gaz CollectifComptageIndividuel
1 garage(s)
Exp. Sud
Digicode
1 balcon(s)
Ascenseur
Nombre de lots dans la copropriété : 60 lots
Prix de vente hors honoraires : 220000 €
Prix de vente honoraires inclus : 229 800 € HAI
Taxe foncière : 1 288 €
Intéressé(e) ?
Contactez-nous...
FAVREAU Davy
03 20 15 20 61
06 59 09 35 49
TYPE 2 DERNIER ETAGE - HYPERCENTRE
Situé au dernier étage d'une petite copropriété, idéalement située entre la gare et la Grand'Place, appartement de 53 m2 offrant une pièce de vie spacieuse avec cuisine US à moderniser, une chambre de belle taille et une salle de...
225 000 € HAI
APPARTEMENT T2 - HYPER CENTRE
Idéalement situé en hyper centre de Lille, à deux pas de Gare Lille Flandres et de la Grand-Place de Lille, ce T2 de 46 m² en parfait état séduit par sa luminosité et son calme côté cour. Il offre une belle pièce de vie, une...
249 000 € HAI
Idéalement situé en plein coeur de Lille, entre République, Beaux-Arts et la gare, cet appartement de type 2 de 53 m² bénéficie d'un emplacement exceptionnel dans une rue à sens unique, offrant calme et accessibilité immédiate à...
209 000 € HAI
Situé à proximité immédiate du parc Jean-Baptiste Lebas, des commerces, du métro et des transports, découvrez cet appartement T4 en duplex de 79 m², niché au premier et deuxieme étage d'une résidence, offrant un cadre de vie...
239 000 € HAI
TYPE 2 DUPLEX EN DERNIER ETAGE - VIEUX LILLE
Situé en plein coeur du Vieux Lille, découvrez cet appartement en duplex de 40m2 loi carrez (50 m2 au sol), au dernier étage, bénéficiant d'une configuration traversante. Un bien lumineux, en excellent état, prêt à vivre. La...
237 000 € HAI
TYPE 2 TRAVERSANT - VIEUX LILLE
Situé en plein coeur du Vieux-Lille, appartement traversant de 38,5 m2 comprenant une pièce de vie très lumineuse avec cuisine US bien équipée, une chambre sur cour et une jolie salle de douche. Contact David TIERS: 06 34 03 67 43...
242 000 € HAI