LILLE IMMO vous propose à la location ce superbe local commercial, idéalement situé au coeur du Vieux-Lille, dans un emplacement recherché et dynamique.
Le local bénéficie d'un état technique irréprochable et se compose :
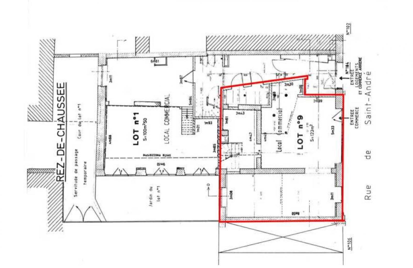
d'un espace de vente en rez-de-chaussée, d'une salle de consultation, d'une salle de soins.
Il dispose également d'un bel étage très lumineux, parfaitement adapté à un usage de bureaux ou aménageable selon vos besoins.
Aucun travaux à prévoir, le local est prêt à l'exploitation.
Disponibilité : mars 2026
Conditions financières :
Loyer : 2 600 euros HT HC / mois
Charges : 200 euros / mois
Taxe foncière : 2 000 euros / an
Dépôt de garantie : 7 800 euros
Frais de rédaction de bail : 1 500 euros HT
Honoraires d'agence : 12 % HT du loyer de la première triennale
Emplacement premium, opportunité rare sur le secteur du Vieux-Lille.
Contact : Paul D'Hondt - 06 01 18 49 52 - paul.dhondt@lille-immo.fr
Les informations sur les risques auxquels ce bien est exposé sont disponibles sur le site Géorisques https://www.georisques.gouv.fr/
Libre le
120 m² hab.
Loyer mensuel charges comprises : 2 800 € CC
Loyer Hors charge : 2600€ + Provisions : 200€
Loyer de référence de base : 2600 €
Dépot de garantie : 7800€
Intéressé(e) ?
Contactez-nous...
DHONDT Paul
03 20 15 20 61
06 01 18 49 52
Idéalement situé dans la charmante rue masurel avec visibilité sur la cathédrale de la treille , ce local commercial en parfait état se décompose d'une surface de vente de 43 m2 et d'une réserve. Parquet et cheminée , beaucoup de...
2 600 € HC
Lille Immo vous propose la cession d'un restaurant idéalement situé au pied de la très prisée Place du Concert, en plein coeur du Vieux-Lille, bénéficiant d'un fort passage piéton et de la dynamique du marché (présent trois fois...
2 300 € HC
LOCAL COMMERCIAL VIEUX LILLE 120m2
Local situé rue st Sébastien dans le Vieux lille sur un très bel emplacement d'angle. Surface de 120m2 + cave dans un quartier dynamique et très résidentiel avec beaucoup de commerces de proximité. TRES BELLE ET LARGE VITRINE ...
2 000 € HC
LOCAL COMMERCIAL RESTAURATION HYPER CENTRE
A LOUER - LOCAL COMMERCIAL - LILLE CENTRE Situé en plein coeur de Lille, ce local commercial est une opportunité clé en main pour tout projet de restauration. Superficie : 60 m² en surface principale Grande cave avec belle hauteur...
2 000 € HC
LOCAL A LOUER RUE NATIONALE 140m2
Local commercial situé en plein coeur du centre ville de Lille à l'angle de la rue Nationale et du Boulevard de la Liberté Flux de passage enorme et belle visibilité Le local est voisin d'un centre médical et d'une école de...
2 500 € HC
Local commercial à louer- Gambetta
Local commercial à louer situé rue Léon Gambetta, axe principal du quartier Wazemmes à Lille, Il possède une surface totale de 117 m2 et est mis à disposition brut permettant un aménagement libre et adapté à n'importe quelle...
2 500 € HC