FB
Menu
Extra
net
122, Rue Solférino
59000 LILLE
03 20 15 20 61

A VENDRE : Maison à RONCHIN •  •  219 000 € FAI  •  Réf. 1545

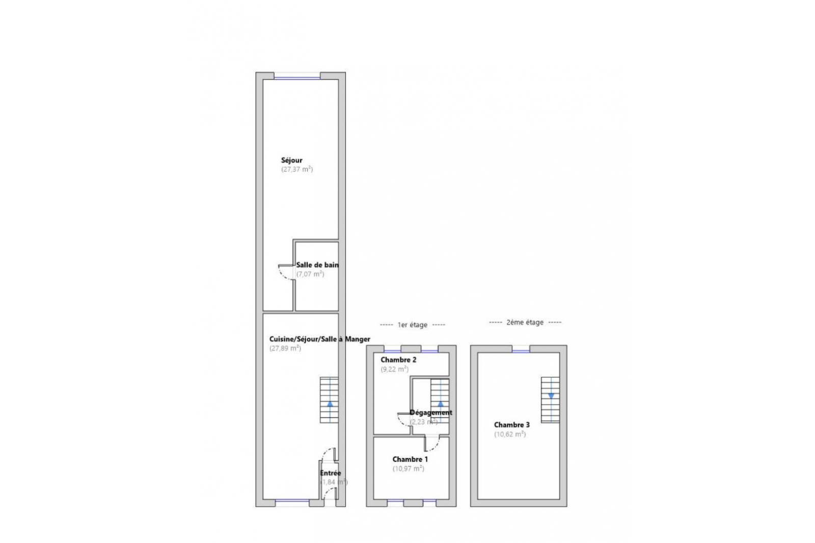
Jolie maison 1930 rénovée de 100m2 habitables, offrant au rez-de-chaussée, un hall d'entrée, une grande cuisine ouverte entièrement équipée avec espace salle à manger, une salle de bains complète avec baignoire, douche, double vasque et WC, et un salon/séjour de 27m2, donnant sur la terrasse et un jardin arboré de 100m2, sans vis à vis. Au 1er étage, deux belles chambres et au 2ème, une grande chambre traversante. Maison rénovée en très bon état général avec bonne isolation, au sein d'un quartier calme. A proximité immédiate de Lille et des axes routiers.
Contact : Davy FAVREAU : 06 59 09 35 49 (5.80 % honoraires TTC à la charge de l'acquéreur.)


Montant estimé des dépenses annuelles d'énergie pour un usage standard : entre 1770 € et 2440 € sur les années 2021, 2022 et 2023 (abonnements compris).

Les informations sur les risques auxquels ce bien est exposé sont disponibles sur le site Géorisques https://www.georisques.gouv.fr/

  • Disponibilité'

    Libre le

  • Surface hab.

    100 m² hab.

  • Pièces

    4 pièce(s)

  • Chambre

    3 chambre(s)

  • Salle de bain

    1 salle(s) de bain

  • État

    Très bon état

  • Chauffage

    Ch. Electrique Individuel

  • Surface jardin

    Jardin 100 m²

  • Terrain'

    Terrain 184 m²

  • Exposition'

    Exp. Est

  • Terrasse'

    1 terrasse(s)

Informations financières :

Prix de vente hors honoraires : 207000 €

Prix de vente honoraires inclus : 219 000 € HAI


Taxe foncière : 500 €

D

Diagnostic de
performance énergétique

B

Indice d'émission
de gaz à effet de serre

En savoir +
Consommation énergétique 237 7*
Émissions GES 7
Nos honoraires

Intéressé(e) ?
Contactez-nous...

Contactez-nous
Que recherchez-vous ?

Tous les types de bien

Toutes les villes

Chargement des villes...

De €   à €  et +

De €   à €  et +

Que recherchez-vous ?

Tous les types de bien

Toutes les villes

Chargement des villes...

De €   à €  et +

De €   à €  et +

Que recherchez-vous ?

Type d'investissement

De €   à €  et +