FB
Menu
Extra
net
122, Rue Solférino
59000 LILLE
03 20 15 20 61

A LOUER : Local à VILLENEUVE D ASCQ •  •  13 120 € HC  •  Réf. 1430

LILLE IMMO vous propose à la location un ensemble de locaux d'activités avec bureaux d'accompagnement idéalement situé à Villeneuve-d'Ascq.

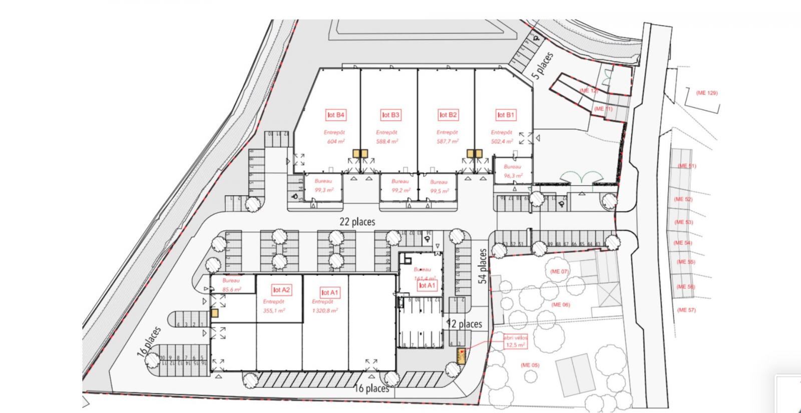
Nous vous présentons un ensemble total de 1 600 m², comprenant 1 200 m² d'espaces d'activité et 400 m² de bureaux, organisé en deux cellules indépendantes et divisibles à partir de 800 m². Le site est implanté au coeur du parc dynamique des Rives de la Marque, à proximité immédiate de l'A22, de la gare de Wasquehal et des lignes de bus 34 et 911.

Surface et configuration

1 200 m² d'activité, soit 600 m² par cellule, avec une hauteur sous poutre de 6 m

400 m² de bureaux, soit 200 m² par cellule, répartis entre rez-de-chaussée et R+1

Possibilité de louer l'ensemble ou une seule cellule

Prestations et caractéristiques

Porte sectionnelle par cellule

Bureaux d'accompagnement fonctionnels et modulables

Ossature métallique, murs béton, couverture bac acier

Résistance au sol : 2T/m²

Accès adaptés aux moyens porteurs

8 places de stationnement privatives par cellule

Livraison « brut » avec fluides en attente, permettant un aménagement sur mesure

Bâtiment de plain-pied, construction récente de qualité

Parc et environnement

Parc mixte et récent

Superficie foncière : environ 14 000 m²

Environ 6 600 m² de bâti et 126 places de stationnement au total

Accessibilité optimale : A22 immédiate, aéroport Lille-Lesquin à 14 min, gare SNCF de Wasquehal à 4 km, bus 34 et 911

Disponibilité

T1 2026

Un ensemble moderne, modulable et idéalement situé, parfait pour des entreprises industrielles, artisanales ou logistiques recherchant un cadre professionnel fonctionnel et attractif.

Conditions de location

Loyer mensuel : 13 120 euros HT/HC (pour l'ensemble)

Honoraires d'agence : 10 % HT de la première triennale

Frais de rédaction de bail : 2 000 euros HT

Contact

Paul D'Hondt ? 06 01 18 49 52 ? paul.dhondt@lille-immo.fr


Les informations sur les risques auxquels ce bien est exposé sont disponibles sur le site Géorisques https://www.georisques.gouv.fr/

  • Disponibilité'

    Libre le

  • Surface hab.

    800 m² hab.

Localisation et accessibilité

Informations financières :

Loyer mensuel charges comprises : 13 120 € CC

Loyer Hors charge : 13120€ + Provisions : 0€

Loyer de référence de base : 13120 €

Nos honoraires

Intéressé(e) ?
Contactez-nous...

Contactez-nous
Que recherchez-vous ?

Tous les types de bien

Toutes les villes

Chargement des villes...

De €   à €  et +

De €   à €  et +

Que recherchez-vous ?

Tous les types de bien

Toutes les villes

Chargement des villes...

De €   à €  et +

De €   à €  et +

Que recherchez-vous ?

Type d'investissement

De €   à €  et +